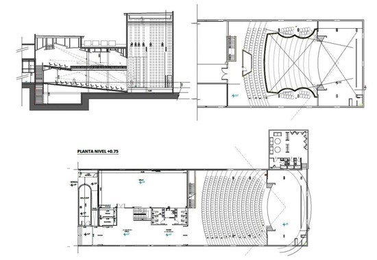
Abella junto a expertos del Teatro Colón avanzan con la reconversión del emblemático espacio cultural de la ciudad. La importante obra permitirá ampliar la capacidad de 220 a 500 butacas, optimizar su acústica y sumar un sector pulman para los espectadores, entre otras mejoras.
A fin de seguir fortaleciendo el arte y la cultura, el intendente Sebastián Abella anunció que, a mediados de año, se iniciará la remodelación total del Teatro Municipal Pedro Barbero.
La importante obra de infraestructura permitirá ampliar la capacidad de 220 a 500 butacas, optimizar su acústica y sumar un pulman para los espectadores, entre otras mejoras, que contribuirán con la modernización del espacio, como así la inclusión y accesibilidad dado las comodidades que tendrán los vecinos al momento de asistir a un espectáculo.
Esta reconversión del emblemático espacio cultural de la ciudad se logró gracias a un trabajo conjunto que viene realizando el jefe comunal con el Gobierno de la Ciudad de Buenos Aires y el Teatro Colón.
En este marco, el Intendente, acompañado por la concejal de Juntos Elisa Abella, mantuvo múltiples reuniones con la directora General del Teatro Colon, María Victoria Alcaraz y su par de Escenotécnico, Enrique Bordolini, para avanzar con el proyecto.
Además, autoridades del Teatro Colón visitaron el Teatro Pedro Barbero para verificar la estructura e infraestructura del teatro y evaluar las posibilidades de ejecutar la obra, quienes confirmaron su viabilidad. También se encuentran brindando asesoramiento técnico con todas las características clave y específicas que se tienen que tener en cuenta en la ejecución del proyecto.
"Esta importante renovación del Teatro Pedro Barbero no solo permitirá que los artistas, principalmente locales, puedan mostrar todo su potencial en un lugar cómodo y moderno, sino que también garantizará que más vecinos puedan acceder a los espectáculos", enfatizó el intendente Abella sobre esta iniciativa al tiempo que informó que el plazo de la obra será de alrededor de un año.
El Intendente y la concejal mantuvieron una reunión con autoridades del Teatro Colón para avanzar con el proyecto que transformará el Teatro Pedro Barbero.
La renovación del Pedro Barbero le permitirá a los artistas desplegar su talento y a los vecinos acceder a más espectáculos.
Esta importante obra de infraestructura será histórica para la ciudad.
La Auténtica Defensa tuvo acceso exclusivo a los bocetos del anteproyecto de remodelación.



